
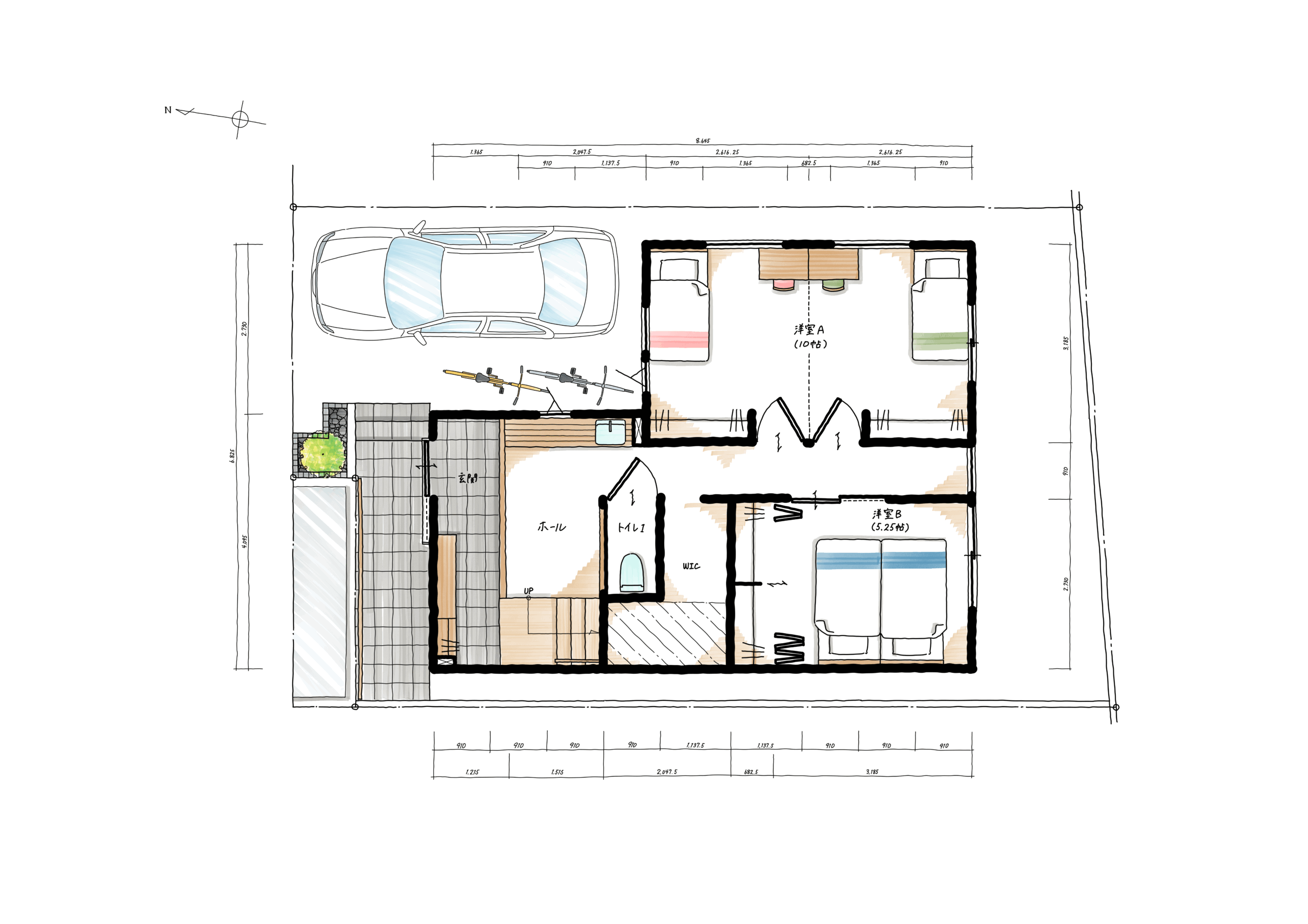
1階 平面図

2階 平面図

メインの2階リビングは、吹き抜けとシーリングファン、そして間接照明が家族団欒の時間を彩ります。奥に見えるロフトは、子供たちが大きくなっても安心な収納スペースであり遊び場です。

フローリング材は無垢のホワイトオーク。キッチンもオープンタイプで面材を同じオークで仕上げることにより一体感が増しました。

奥様こだわりの造作洗面カウンターは、シンプルながらも奥に繋がる階段空間から漏れ出す木漏れ日を感じることができます。

子供たちが帰ってきたら、すぐに手を洗えるように玄関脇には洗面カウンターを完備。

キッチンから奥に繋がるパントリー。そして、真鍮をアクセントとした食器棚が華やかに配置されています。

お手洗いにも無垢のカウンターを付けて収納力をアップ。

洗面脱衣室には、着替えがすぐ取り出せるスペースといつでも室内干しが可能なアイアンバーを設置。

キッチンは、IHコンロと海外製の食洗器も付けています。シンプルなステンレスのワークトップも全体の色調とマッチしています。

子供たちが転んでも痛くないように人工芝を完備。

玄関からまっすぐと繋がる庭にはシンボルツリーがお出迎え。

階段は一部をスケルトン階段にし、手すりを木製フラットバー。間接照明も一緒に付けているので、こだわり抜いたディテールです。

外壁はそとん壁W121(白)スチロゴテ仕上げ。屋根はディプロマットスター。軒天は、ダイライト木目調を使用。

夜に当たるダウンライトは、並ぶ家たちを一緒に輝かせます。